6049 Braidwood Close NW, Acworth, GA 30101
Toggle Navigation
Images
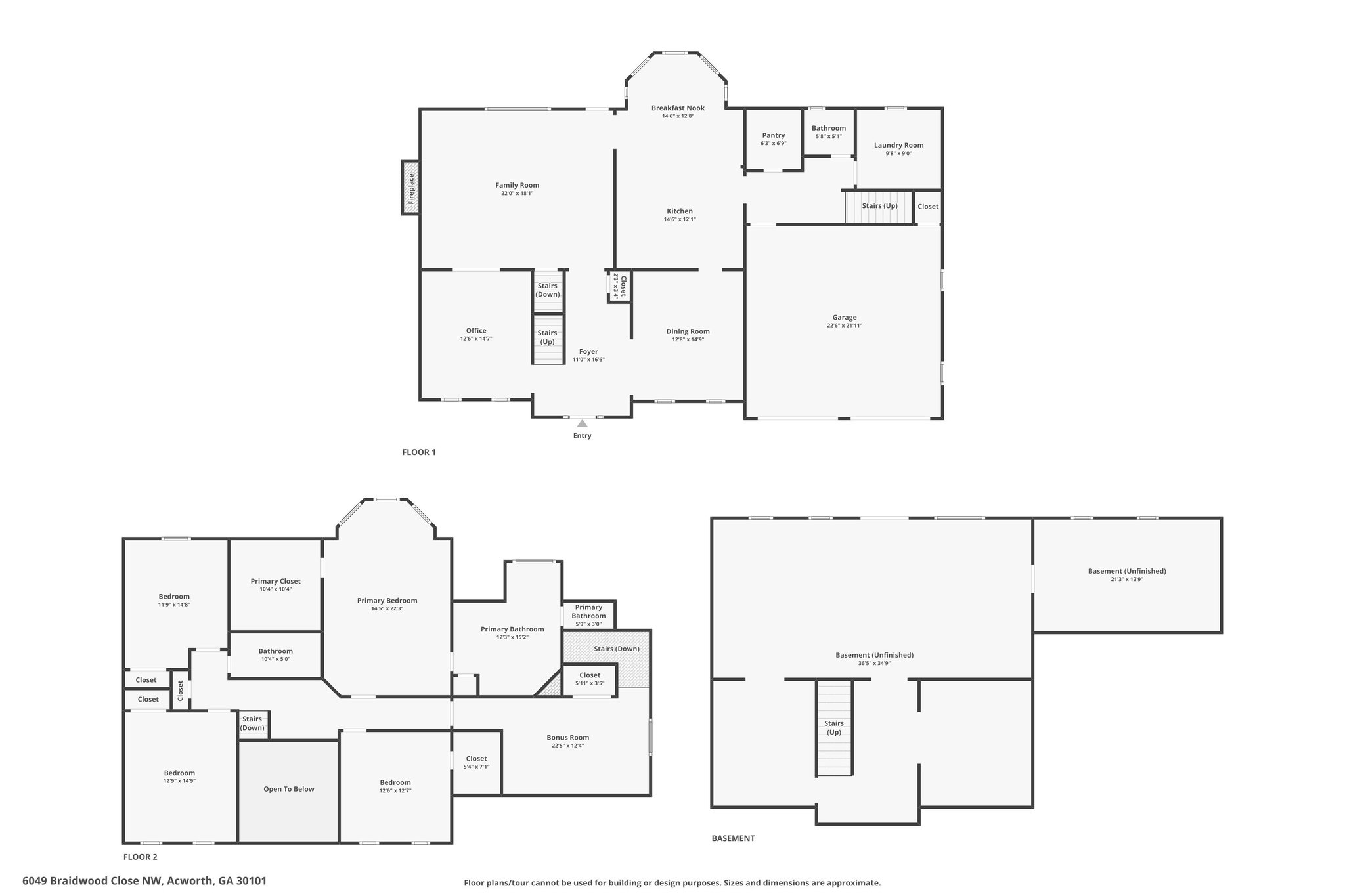
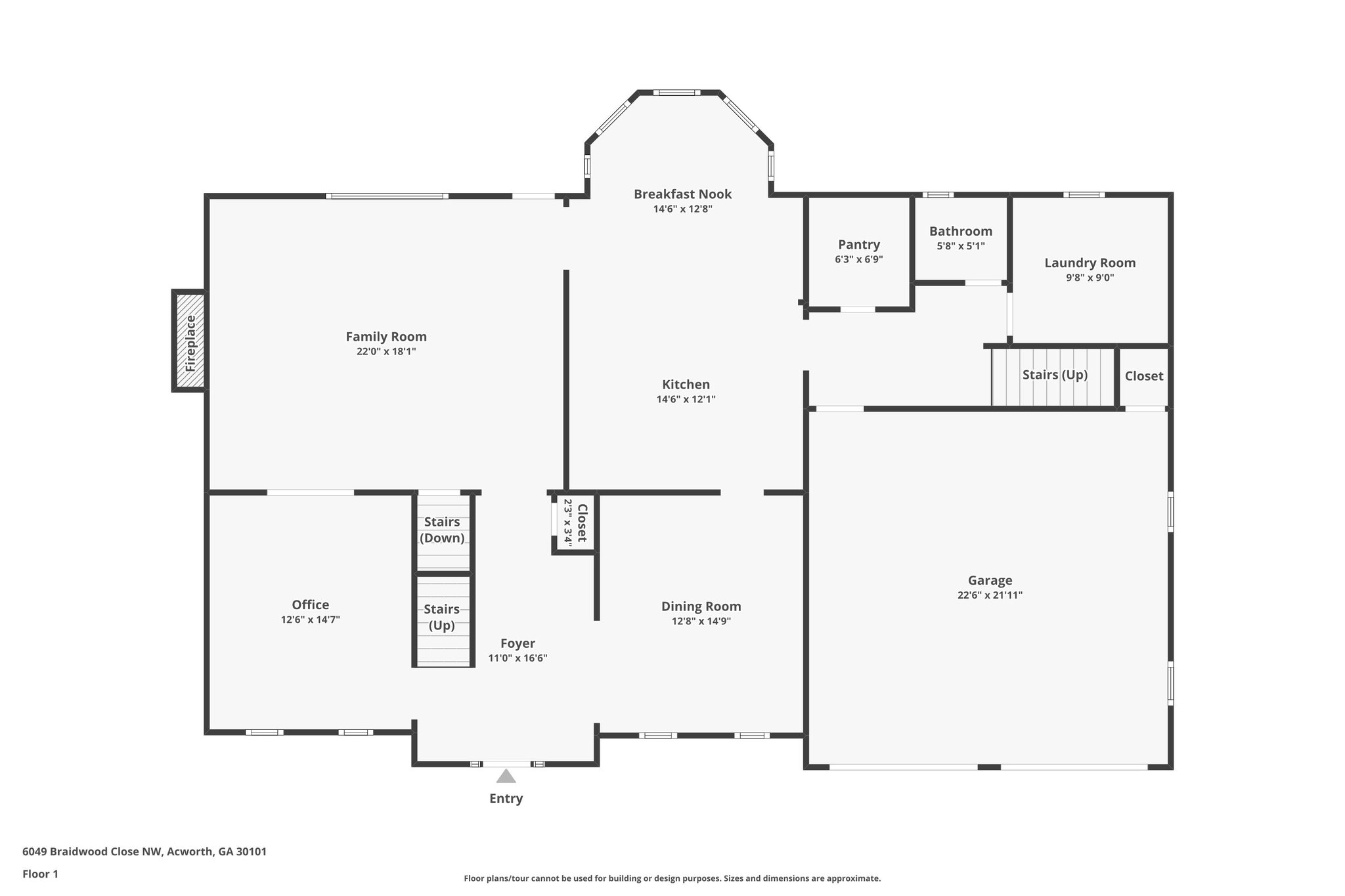
Floor Plans
3D Tour
Map
6049 Braidwood Close NW
Acworth, GA 30101
Scroll to Content
Images
Slideshow
Photo Grid
Hide
Previous
Next
Show more
Floor Plans
Slideshow
Photo Grid
Hide
Previous
Next
3D Tour